| 情報更新日 | |
| 物件種目 | 賃貸 |
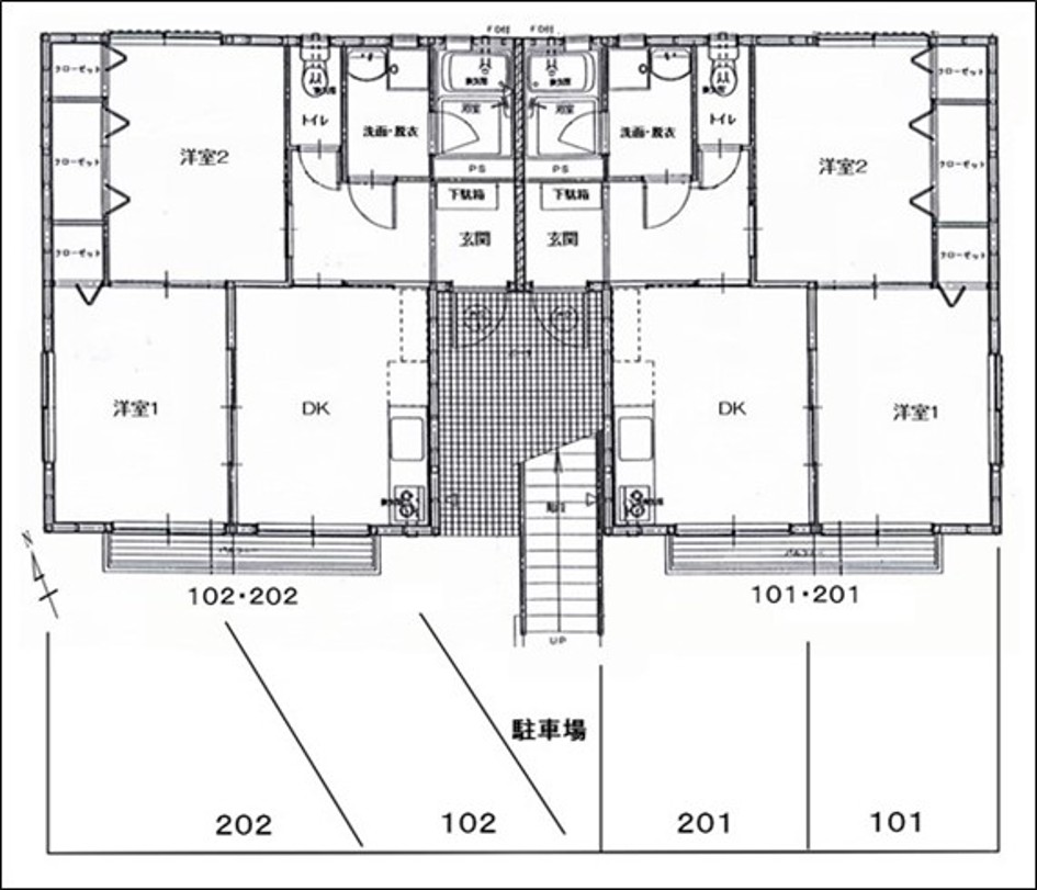
| 物件ID | 01-089-102 |
| 所在地 | 山口県周南市梅園町一丁目39番地の2 |
| 坪単価 | |
| 共益費 | |
| 礼金 | |
| 保証金 | |
| 敷金 | |
| 学校区 | |
| 交通 | |
| 道路 | |
| 敷地面積 | |
| 建物面積 | |
| 専有面積 | |
| 構造 | 鉄骨造 |
| 間取 | |
| 設備 | |
| 都市計画 | |
| 用途地域 | |
| 建蔽率 | |
| 容積率 | |
| 地目 | |
| 建物築年月 | |
| 防火指定 | |
| 水道 | |
| ガス | 山口合同ガス |
| トイレ | 水洗 |
| 設備 | エアコン CATV シャワー 駐車場 ガス給湯 |
| 現況 | 空き |
| 引渡 | |
| 地勢 | |
| 総戸数 | |
| 土地権利 | |
| 取引態様 | |
| 管理形態 | |
| 管理会社 | |
| 管理費 | |
| 修繕積立金 | |
| 駐車場費 | |
| 雑費 | |
| 町内会費 | |
| 鍵交換代 | |
| 室内清掃費 | |
| その他一時金 | |
| 階建・所在階 | |
|
バルコニー・ 専用庭 |
|
| 契約期間 | |
| 更新料 | 22,000円/2年 |
| フリーレント | |
| 定期借家 | |
| 保険 | 20,000円他/2年 |
| 賃貸保証 | 初回:16,500円 月額:1,100円 |
| 条件等 | |
| インスペクション | |
| 性能評価 | |
|
リフォーム・ リノベーション |
|
| 特記 |
| その他負担金 |
・仲介手数料:60,500円 ・24Hサポ;495円 ・駐車料:付 ・駐車料2台目:無 ・CATV:CCS |
| 備考 |
☆初期費用の合計金額には日割り賃料は含んでおりませんので、月の途中での入居の場合は日割り賃料が発生します。 ☆2年毎に契約更新事務手数料が発生します。 ☆解約月は賃料の日割り清算はありません。 ☆解約通知は解約月の1ヵ月前(月末締め)までに連絡してください。通知の無い場合賃料1ヶ月分相当額の違約金が発生します。 ☆退去時、鍵交換料及び清掃代が発生します。 |
| コメント | |
| アクセス |
(有)不動産管理








